
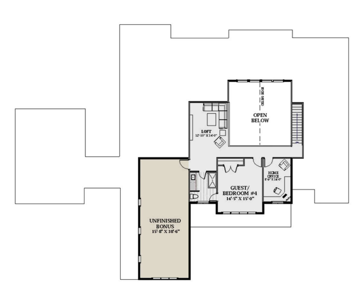
Ravenwood is a generously sized modern farmhouse plan, thoughtfully designed to balance everyday comfort with refined style and open, airy living. Its wide layout flows seamlessly from the entry through the great room, into a large kitchen, dining space, and onto expansive outdoor living areas — making it ideal for casual family life or entertaining on a grand scale. With high ceilings, thoughtful room placement, and ample natural light, Ravenwood feels both elegant and welcoming.
This home’s design emphasizes flexibility and comfort. Whether you’re hosting family gatherings, enjoying quiet evenings by the fire, or spending weekends by the water, Ravenwood adapts effortlessly. With spacious bedrooms, multiple baths, and a roomy garage, this plan offers plenty of space for family, guests, and lifestyle needs — all wrapped in modern farmhouse charm.
Ravenwood combines functional design and farmhouse character to offer a home that’s as practical as it is beautiful.
Ravenwood delivers a harmonious blend of space, style, and practicality — perfect for estate lots or lakefront settings. If you’re ready to build a home designed for living, entertaining, and growing, Ravenwood is the plan for you. Contact Costa Maison today to explore customizing this plan for your property and begin building a home that truly reflects your vision.
More plans...

Sign up to get early access and priority updates on our latest builds, design news, and curated inspiration.