
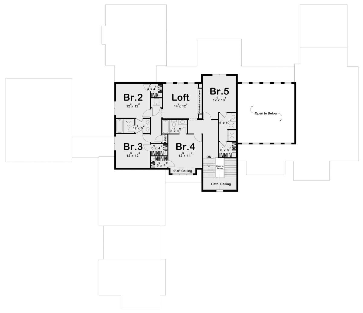
Avignon is a gracious modern-transitional plan crafted to deliver both grandeur and comfort. Its expansive layout seamlessly blends open-concept living spaces with refined architectural details, balancing communal gathering areas and private retreats. Ideal for families or those seeking room for guests, Avignon supports sophisticated entertaining and relaxed everyday living alike.
With five bedrooms and 4.5 baths, this home offers generous accommodation and privacy. Vaulted ceilings, large windows, and thoughtfully planned floor flow create an airy, light-filled atmosphere. Whether spending quiet evenings with loved ones, hosting gatherings, or enjoying peaceful mornings, Avignon is designed to meet the demands of modern lifestyle with timeless style.
Avignon’s design combines spacious living, thoughtful amenities, and elegance — perfect for families, entertaining, and long-term enjoyment:
Avignon combines space, style, and thoughtful design into a home built for life — perfect for a growing family, frequent entertaining, or long-term comfort. If you’re ready to bring this plan to life on your land, our team at Costa Maison is ready to guide you from customization choices through final construction. Contact us today to schedule your consultation and take the first step toward building Avignon on your lot.
More plans...

Sign up to get early access and priority updates on our latest builds, design news, and curated inspiration.